Šachty kanalizačné PVC, PP
Tabuľka rozmerov
* pre získanie presných cien prosím vložte produkt do košíka a odošlite prostredníctvom neho žiadosť o cenovú ponuku.
Špecifikácia produktu
| Kategória: | Šachty kanalizačné PVC, PP |
| Rozmery: | viď tabuľka |
Popis
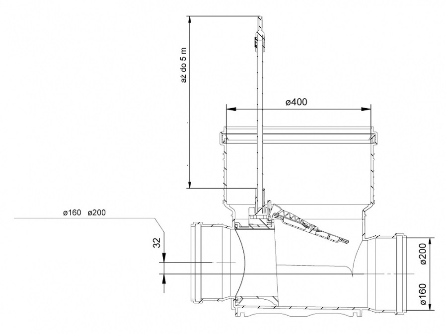
Šachtové dno so spätnou klapkou
Šachtové dno so spätnou klapkou je určené na napojenie z budou do hlavnej kanalizácie. Slúži k zabráneniu spätného chodu splaškov a pachov späť do potrubia a vniknutiu hlodavcov do systému. Revízna šachta sa používa - montuje na potrubie kanalizácie spravidla pre prípad, aby bola možnosť do kanalizačného potrubia vložiť "krtka" na prečistenie danej vetvy, keď sa upcháva. Ak je kanalizačné potrubie dlhšie doporučujeme vkladať revízne šachty každých 20-25m.
VÝHODY:
- zabezpečenie objektov pred zápachom, hlodavcami, prípadným zatopením z kanalizácie
- ovládanie klapky, alebo prípadná demontáž klapky je z povrchu bez nutnosti výkopových prác
- jednoduchá montáž, osadenie bez nutnosti použitia mechanizmov, alebo montážnej firmy
- napojenie cez hrdlo s gumovím tesnením zabezpečuje 100% tesnosť
- dlhá životnosť, vyrobené z kvalitného plastu, prítlačný tanier z nerezovej ocele
- odolnosť voči korózii, teplotám a chemickým zlúčeninám

Potrubia
Tvarovky
Liatinové tvarovky
Armatúry
Hydranty
Šachty a nádrže
Poklopy
Čerpadlá
Rôzne
Potrubia
Tvarovky
Armatúry
Šachty
Poklopy a mreže
Liatinové poklopy
Poklopy kompozitné a plastové
Čerpadlá
Rôzne
GEBO
Priemyselné armatúry
Priemyselné potrubné rozvody
Spojky
Vpusty
Odvodňovacie žľaby
Závlaha
Hurner
Tag